Дом по адресу Новосибирск, Камышенский Лог переулок, за 2800000 р.

Адрес Новосибирск, Камышенский Лог переулок
Цена 2 800 000 р.
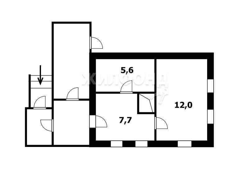
Площадь дома 25,3 м2, участка 8,62 м2
Кол-во комнат 8
Дом по ул. Камышенский Лог. Общей площадью: 25.30 кв.м. В продаже уютный одноэтажный дом в городе Новосибирск, расположенный на улице Камышенский Лог, дом 52. Общая площадь дома составляет 25.3 квадратных метра, что идеально подойдет для небольшой семьи или пары. Данный вариант также подойдет под коммерческие цели! В доме имеется две комнаты и кухня. Дом огорожен забором, есть баня. Вода заведена в дом, канализация септик, можно провести газ, проходит по границе участка. В шаговой доступности находятся магазины, супермаркеты, аптеки, банки, детские сады и школы. Удобная транспортная доступность также является преимуществом этого района. Рядом с домом находятся остановки общественного транспорта, откуда можно легко добраться до любой точки города. Приходите ! Звоните! ! Дом ждет новых жильцов! ! Возможен обмен на вашу недвижимость. Возможна продажа в рассрочку. При звонке, пожалуйста, сообщите номер варианта - JV008054176302
Объявление № 23168096
Дата подачи:
22 августа 2025 г. 6:37
Дата обновления:
22 августа 2025 г. 6:37
Просмотров 16 Хотите продать быстрее?

Продавец
Евгения Владимировна
Показать номер телефона
Пожаловаться
Комментарии:
Добавить